Address
Lindsay Street North, City of Kawartha Lakes

Hygge Towns is a new townhomes development by Fernbrook Homes. Prices estimated to be starting from $619,990 - $767,990. Hygge Towns is nearby Pioneer Park and the Kawartha Lakes Bus Lines, the project is estimated to be completed in 2025 and will be located on Lindsay Street North at the Lindsay neighbourhood in Kawartha Lakes.
Discover the epitome of serene living at Hygge, nestled in the picturesque town of Lindsay, Ontario. Surrounded by the tranquil beauty of lakes, parks, and rivers, Hygge offers contemporary townhomes designed for modern comfort and elegance. With its prime location just minutes away from Downtown Lindsay and close proximity to major lakes and urban centers like Toronto and Peterborough, Hygge provides residents with the perfect balance of natural serenity and urban convenience. Experience the essence of peaceful living at Hygge, where every detail is crafted to create a harmonious and inviting home environment.
Nestled East of Lake Simcoe and bordered by the Scugog River, Hygge is situated in Lindsay, a hidden gem of Southern Ontario. Surrounded by a plethora of lakes, parks, and rivers, Lindsay offers residents an idyllic setting for outdoor activities and natural beauty.
Transit Options:
Nearby Parks and Entertainment:
Dining and Shopping:
Development Amenities:
218 Lindsay Street North, Lindsay, Ontario K9V 5V4, Canada
Lindsay Street North, City of Kawartha Lakes
Fernbrook Homes is a renowned homebuilder committed to prioritizing customer satisfaction above all else. With over three decades of experience, Fernbrook has established itself as a leader in architectural design innovation, creating stunning communities that reflect the diverse preferences and lifestyles of today's buyers. Led by Chairman and Founder Danny Salvatore and President and CEO Joe Salvatore, the company's team of over 100 professionals is dedicated to delivering high-quality homes built with meticulous attention to detail and craftsmanship. Fernbrook's signature communities exude exclusivity and charm, with stylish exteriors, intimate streetscapes, and a focus on creating welcoming environments for residents. With a passion for excellence and a commitment to personalized service, Fernbrook Homes continues to set the standard for luxury living in Southern Ontario.
Hygge features and amenities are designed to enhance comfort, relaxation, and well-being for residents. Hygge offers homes with thoughtful interior finishes aimed at creating a refined and welcoming atmosphere in every room. Here's a breakdown of some of the key features and amenities:
Impressive Exterior Features:
Superior Interior Features:
Gourmet Kitchen Features:
Luxurious Bathroom Finishes:
Security and Safety Features:
Additional Superior Construction Features:
Customer-Friendly Upgrade Program:
Helpful Rough-Ins for Future Needs:
| Model | Bed | Bath | SqFT | Price |
|---|---|---|---|---|
| Colborne | 3 | 2 | 1431 | - |
| Colborne End | 3 | 2 | 1469 | - |
| The Fleming | 3 | 1 | 1149 | - |
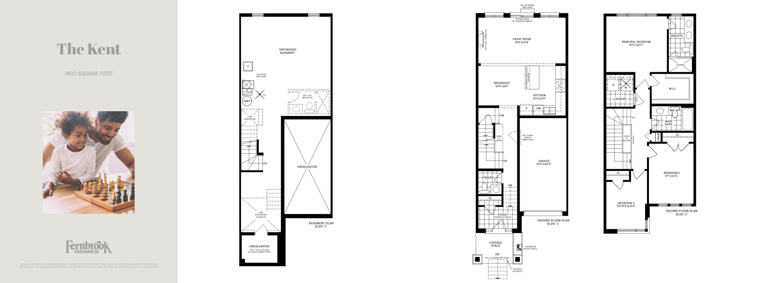
| The Kent | 3 | 2 | 1533 | - |
| The Kent End | 3 | 2 | 1572 | - |
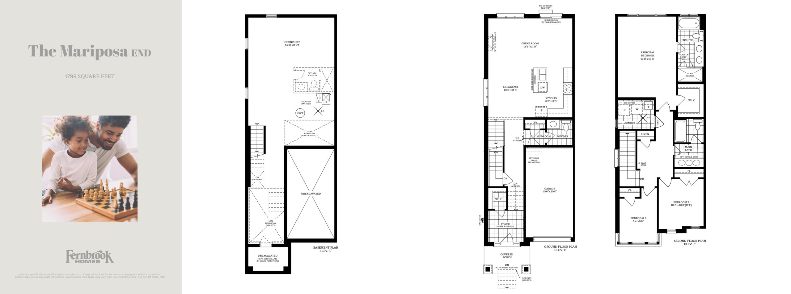
| The Mariposa End | 3 | 2 | 1799 | - |
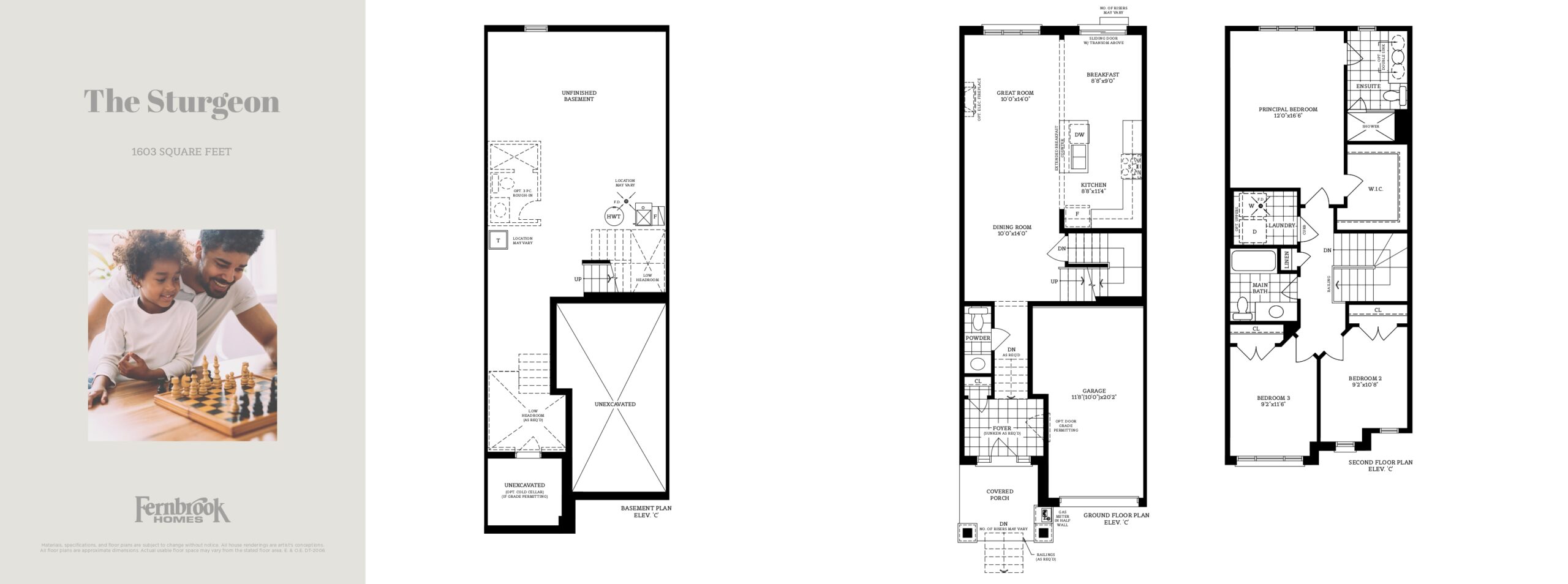
| The Sturgeon | 3 | 2 | 1603 | - |
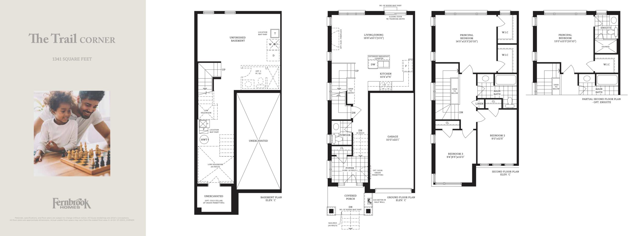
| The Trail Corner | 3 | 1-2 | 1341 | - |
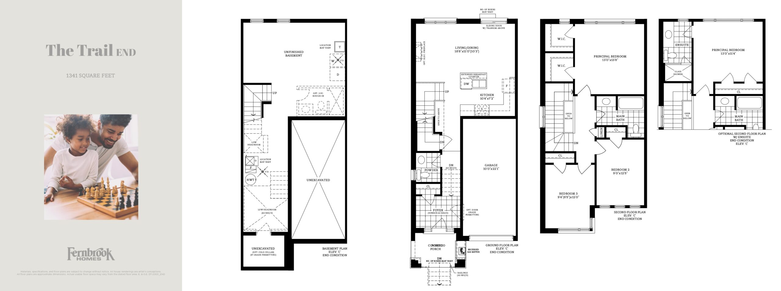
| The Trail End | 3 | 1-2 | 1341 | - |
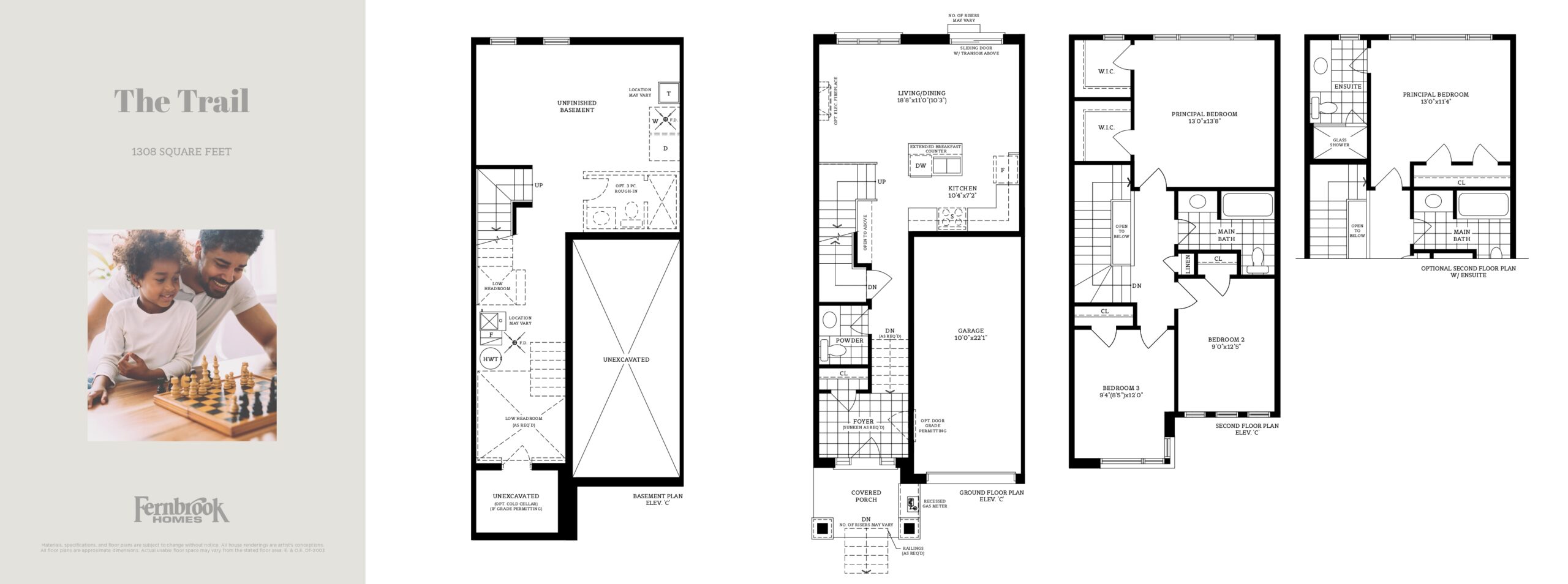
| The Trail | 3 | 1-2 | 1308 | - |
| The Balsam End | 3 | 2 | 1780 | - |
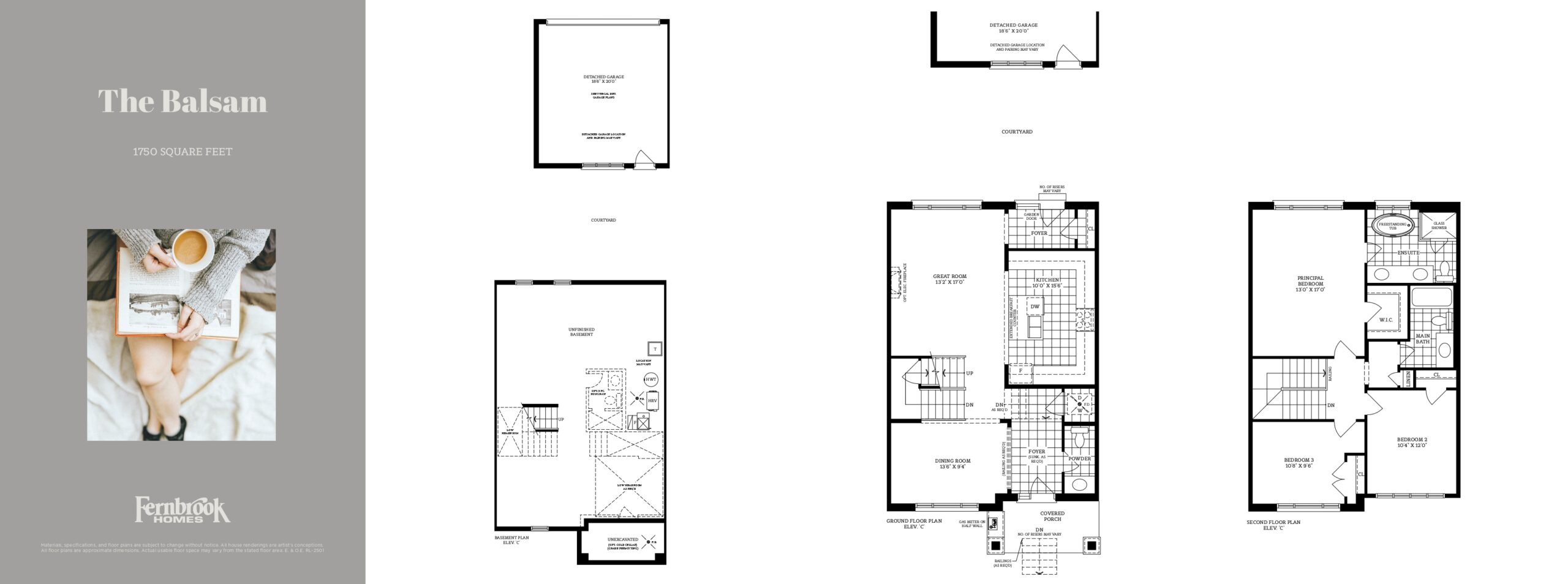
| The Balsam | 3 | 2 | 1750 | - |
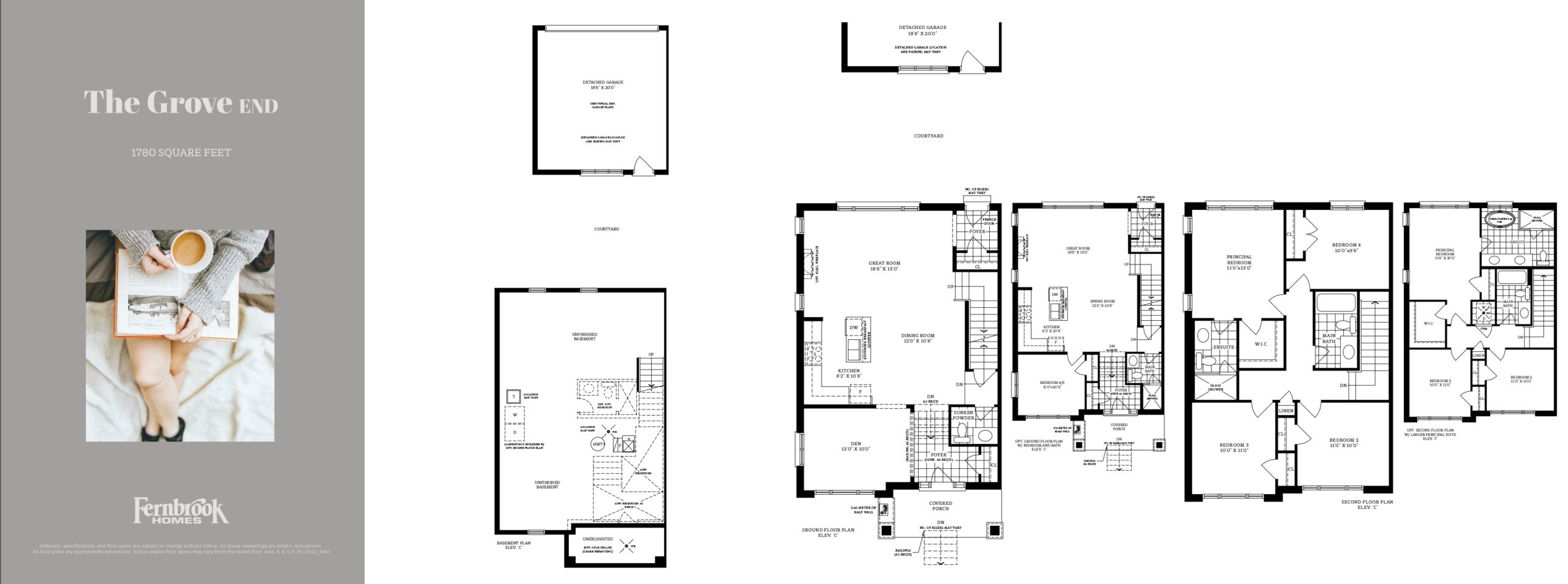
| The Grove End | 3-4 | 2 | 1780 | - |
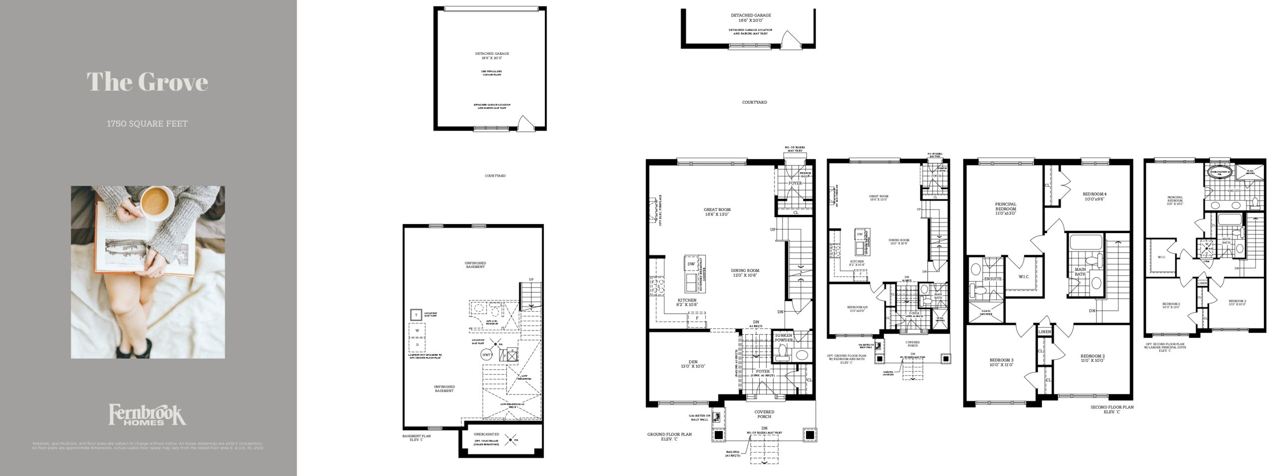
| The Grove | 3-4 | 2 | 1750 | - |




























| Plan | Suite Name | Suite Type | Bath | SqFT | Price | Terrace | Exposure | Availability | |
|---|---|---|---|---|---|---|---|---|---|
![]() | Colborne | 3 | 2 | 1431 | - | - | - | - | Reserve Now |
![]() | Colborne End | 3 | 2 | 1469 | - | - | - | - | Reserve Now |
![]() | The Fleming | 3 | 1 | 1149 | - | - | - | - | Reserve Now |
![]() | The Kent | 3 | 2 | 1533 | - | - | - | - | Reserve Now |
![]() | The Kent End | 3 | 2 | 1572 | - | - | - | - | Reserve Now |
![]() | The Mariposa End | 3 | 2 | 1799 | - | - | - | - | Reserve Now |
![]() | The Sturgeon | 3 | 2 | 1603 | - | - | - | - | Reserve Now |
![]() | The Trail Corner | 3 | 1-2 | 1341 | - | - | - | - | Reserve Now |
![]() | The Trail End | 3 | 1-2 | 1341 | - | - | - | - | Reserve Now |
![]() | The Trail | 3 | 1-2 | 1308 | - | - | - | - | Reserve Now |
![]() | The Balsam End | 3 | 2 | 1780 | - | - | - | - | Reserve Now |
![]() | The Balsam | 3 | 2 | 1750 | - | - | - | - | Reserve Now |
![]() | The Grove End | 3-4 | 2 | 1780 | - | - | - | - | Reserve Now |
![]() | The Grove | 3-4 | 2 | 1750 | - | - | - | - | Reserve Now |













